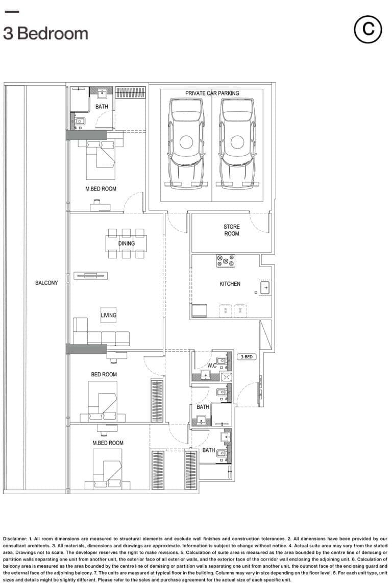
Binghatti Crescent 3 Bedroom Apartment Type C Floor Plans

Binghatti Crescent 3 Bedroom Apartment Type C Floor Plans
Contact Us

    We're open for any Queries

    Address: Mezzanine Floor Liberty Building - Al Quoz 3 Sheikh Zayed Rd - Dubai

    Compare listings

    Compare
    live chat
    WhatSapp Image